Skip to content

447 Sims Road, Winslow, VIC, 3281

Winslow VIC 3281

Sale by Offer

Rural Lifestyle Business Opportunity with Substantial Homestead and Shedding 10 Minutes from Warrnambool - 99.5 Acres - Mailors Flat/Winslow

For Sale by Offer - Closes Saturday 8th November 2025 at 12 noon

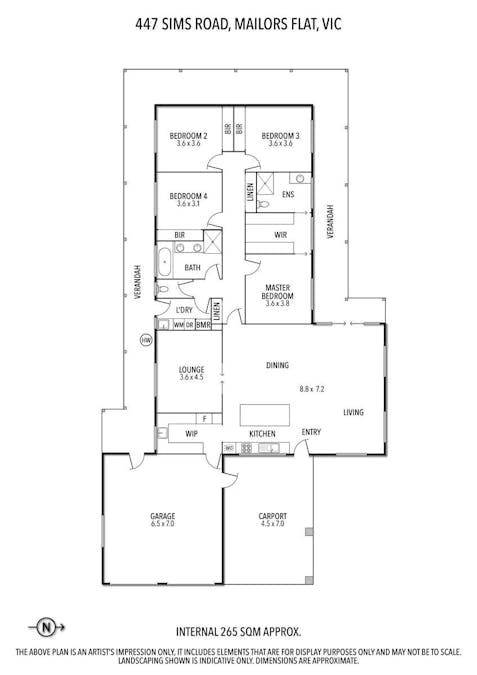
A newly constructed four-bedroom home with double garage, not yet fully completed, is situated on 99.5 acres of superb gently undulating clay loams with high performance base rye grass pastures offering viable income generating productivity. Dual road frontage.

The house is positioned to receive great Northern sunlight into the kitchen and main living area through large, double-glazed windows, which are fitted with automated exterior roll-down shutters for safety and protection from external conditions.

The well-placed kitchen is decked out with smart wood grain cabinetry, 2 stainless steel Miele ovens, hot plates and dishwasher. This area is complimented with a good size butler's pantry. The connecting main living area is a great size for family and friends.

A formal living area is situated nearby and provides outstanding views of the surrounding countryside.

Four bedrooms are situated along the hallway; the master features a spacious walk-in robe and ensuite with shower, vanity, and toilet. The other 3 bedrooms all have built in robes and blissful country views.

The beautifully tiled main bathroom is located centrally to the bedrooms and laundry which has plenty of storage for a growing family. The entire home features central heating and cooling via an industrial split system and includes well insulated ceilings and walls. There is wiring provision for solar panels.

Located at the rear of the property is a four-bay machinery shed 12m x 24m x 6m and a secure three-bay shed 7.5m x 16m x 6.3m with 3 phase power and sliding door access. Covered all steel cattle yards with crush and ramp. Separate shedding houses a submersible bore, pop up sprinklers service the house lawns.

The property consists of 14 newly fenced paddocks, each with 700ltr water troughs all serviced by central laneway for ideal ease of access and livestock movement. The water is supplied from a submersible equipped bore via a 2" water line with windmill backup which has 2 x 3000 gal tanks connected and solar equipped dam.


In Conjunction with Lisa Fitzgerald Real Estate - 0437323410

Inspections by appointment only

Features

General Features

  • Land Area: 40.3hect (approx)

Can I afford 447 Sims Road, Winslow, VIC, 3281?

Whether you’re a first-time buyer, looking for your next home, or considering upgrading or downgrading, Elders Finance can unlock the doors to the right finance option for you and get you into the home of your dreams.

Calculators

Elders Real Estate Warrnambool

Enquire about 447 Sims Road, Winslow, VIC, 3281

Property guides and resources

Prepare Your Holiday Rental Property for the Summer Busy Season

If you own a holiday rental, summer is your grand-final season. Bookings…
Read more

The 2025 Commercial Market Wrap: Resilience, Repositioning and Regional Strength

Australia’s commercial property market has demonstrated remarkable resilience through the 2025 financial…
Read more

Elders accelerates network expansion in Central Queensland with the acquisition of Pat O’Driscoll Real Estate and Knight Frank Rockhampton

Elders has strengthened its real estate network in Central Queensland with the…
Read more